詳細介紹
| 產品概述 ZRQM系列智能型電動調節閥是一種壓力平衡式調節閥。配用RQM系列智能型電動執行機構,總體結構緊湊、重量輕、穩定性好、防護等級高。因而廣泛應用于大型火電廠、化工廠、水處理和污水處理、天然氣油田、鋼鐵廠等自動調節系統中。 主要零件材料 閥體、閥蓋:HT200、ZG230—450、ZG1Cr18Ni9Ti 閥芯、閥座:1Cr18Ni9Ti、司鈦萊合金堆焊 閥桿、推桿:2Cr13、1Cr18Ni9Ti 襯 套:2Cr13 填 料:聚四氟乙烯、柔性石墨、不銹鋼波紋 主要技術參數電動執行機構主要技術參數輸出推力:44~550KN (輸出調節推力:5.71~47.05KN) (輸出額定關閉推力:8.4~63.15KN) 位置控制基本誤差:(設定行程時間≥25秒)±1% 重復性誤差:(設定行程時間≥25秒)≤1% 死 區:0.1%~9.9%可調 輸出額定負載止下啟動頻率:1200次/小時 輸入信號:4~20mA/100Ω,2~10mA/100Ω,DC24V開關量。 供電電源:380±10%VAC,50Hz 相對溫度:≤95% 環境溫度:-30℃~+70℃ 防爆等級:ExdⅡBT4 防擴等級:IP68 輸入輸出通道均采用光電隔離 調節機構主要技術參數
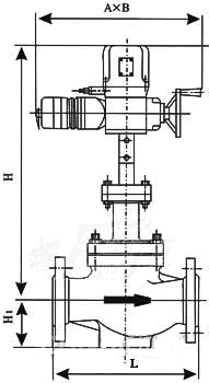
產品結構![]() | ||||||||||||||||||||||||||||||||||||||||||||||||||||||||||||||||||||||||||||||||||||||||||||||||||||||||||||||||||||||||||||||||||||||||||||||||||||||||||||||||||||||||||||||||||||||||||||||||||||||||||||||||||||||||
溫馨提示:“ZRQM系列智能型電動調節閥”所有文字、數據、圖片均只適用于參考。
如需與實物相吻合的性能參數、結構尺寸參數等詳情請來電來函索取。
電話:021-68103333 傳真:021-51686322
如需與實物相吻合的性能參數、結構尺寸參數等詳情請來電來函索取。
電話:021-68103333 傳真:021-51686322

軟密封蝶閥視頻介紹




掃一掃關注我們