電動矩形百葉式調節蝶閥

電動矩形百葉式調節蝶閥

  • 質量穩定
  • 價格合理
  • 交貨快捷
  • 泰通閥門為您提供全套工程閥門解決方案
  • 銷售:021-6810 3333    6139 0811
  • 傳真:021-5168 6322
  • 地址:上海南匯空港工業區金聞路1288號

詳細介紹

用途和特點
電動百葉式蝶閥配置電動執行機構廣泛應用于建材、治金、礦山、電力等生產過程,能自動控制或手動控制調節管路中介質流量。蝶板采用百葉多軸體結構,液體均勻,啟閉力矩小,動作靈敏,性能可靠。

主要技術參數
公稱壓力PN
0.05MPa
泄漏率
≤3%
適用溫度
-30℃~350℃
介質流量
≤25m/s
適用介質
粉塵、含塵氣體
 
 

 

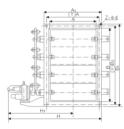
電動矩形百葉式調節蝶閥主要外形連接尺寸

A×B
A1×B1
A2×B2
L
L1
H1
H
b
Z-Фd
X
Y
320×180
375×105
400×240
180
245
580
735
8
164
5
3
320×250
375×395
400×330
180
245
625
825
8
164
5
3
400×200
455×255
500×330
200
245
610
805
8
168
5
3
400×320
455×375
500×420
200
245
870
915
8
168
5
3
500×200
555×255
600×300
220
245
610
805
8
168
5
3
500×400
555×455
600×500
220
245
370
915
8
208
5
5
630×320
685×375
730×420
220
245
610
805
10
208
7
3
630×400
685×455
730×500
220
245
710
995
10
248
7
5
800×400
855×455
900×500
240
300
670
945
10
248
7
5
800×630
855×685
900×730
240
300
710
995
10
288
7
7
1000×500
1070×570
1130×830
260
300
790
1075
10
24-23
7
5
1000×800
1070×870
1130×930
260
300
905
1270
10
28-23
7
7
1250×630
1320×700
1380×760
280
300
1005
1505
10
32-23
9
7
1250×1000
1320×1070
1380×1130
280
300
1105
1705
10
32-23
9
7
1400×800
1470×870
1530×930
300
385
1075
1575
10
36-23
11
7
1400×1250
1470×1320
1530×1380
300
385
1300
2025
10
40-23
11
9
1600×1000
1670×1070
1730×1130
320
385
1175
1775
10
36-23
11
7
1600×1250
1670×1320
1730×1380
320
385
1300
2025
10
40-23
11
9
1800×1250
1870×1320
1930×1380
340
420
1450
2175
10
44-23
13
9
1800×1400
1870×1470
1930×1530
340
420
1525
2325
10
48-23
13
11
2000×1250
2070×1320
2130×1380
360
420
1450
2175
10
48-23
15
9
2000×1800
2070×1670
2130×1730
360
420
1620
2520
12
52-23
15
11
2500×1800
2570×1870
2630×1730
420
450
1695
2595
12
56-23
17
11
2500×2000
2570×2070
2630×2130
420
450
1895
2995
12
64-23
17
15
2800×2500
2870×2570
2930×2630
440
450
2145
3195
12
72-23
19
17
3200×2800
3270×2870
3330×2930
480
480
2325
3825
12
80-23
21
19
3600×3200
3670×3270
3730×3330
520
480
2525
4225
12
88-23
23
21
4000×3600
4070×4670
4130×4730
560
480
2725
4825
12
100-23
27
23

產品尺寸

溫馨提示:“電動矩形百葉式調節蝶閥”所有文字、數據、圖片均只適用于參考。
如需與實物相吻合的性能參數、結構尺寸參數等詳情請來電來函索取。
電話:021-68103333    傳真:021-51686322
  • 泰通二維碼掃一掃關注我們
  • 聯系我們
  • 公司地址:上海南匯空港工業區金聞路1288號
  • 浙江基地:溫州甌北東甌工業區
  • 銷售:021-68103333 
  • 郵箱:shttv@qq.com
© 2017 上海泰通閥門有限公司 版權所有 滬ICP備11033150號
Top

[關閉]免費接聽泰通銷售工程師電話

輸入手機或固定電話號碼,點擊“免費咨詢”按鈕后,
我們的服務人員會在15秒內回撥您。

手機請直接輸入:如 13878800000
座機前請加區號:如 02168103333
我們已對本次通話全程加密,您的通話費用我們已經幫您支付,請放心接聽!
免費通話所產生的費用由我們來支付,請放心接聽!
銷售熱線:021-6810 3333